Casa 4 camere de vanzare in Cluj-Napoca, Tineretului ID 5959
Dotari imobil
Beton
Detalii imobil
Etaj / Al doilea nivel: 2 dormitoare, 1 birou, 1 hol, 1 baie, 2 balcoane.
Descriere imobil
Duplex cu arhitectura moderna situat in Cluj-Napoca, intr-un cartier nou-dezvoltat, cartierul Tineretului, fiind ideal pentru familii. Zona este aerisita si linistita; este o zona de case si vile, oferind o panorama superba asupra orasului.
Imobilul este dispus pe doua niveluri, respectiv P+E, cu posibilitate de amenajare terasa deasupra locuintei datorita placii turnate.
Suprafata utila este de 100 mp.
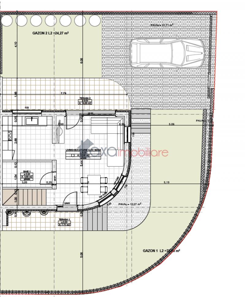
Compartimentare
Parter / Primul nivel: 1 living cu loc de luat masa, 1 bucatarie, 1 baie, 1 hol, scara interioara, 2 terase.
Etaj / Al doilea nivel: 2 dormitoare, 1 birou, 1 hol, 1 baie, 2 balcoane.
Se vinde la stadiul de semifinisat, cu toate utilitatile trase la pozitie.
Dotari
Centrala termica, incalzire in pardoseala, geamuri termopan.
Suprafata terenului aferent este de 200 mp.
De asemenea, dispune de alei pavate si de loc de parcare.
Termen de finalizare: 2021.
Opinia agentului
" Constructie noua de tip duplex; cu o arhitectura cocheta si priveliste superba asupra orasului, situata intr-un cartier nou-dezvoltat de case si vile. Zona este linistita si aerisita, fiind ideala pentru cei care iubesc natura. Nu este o casa foarte mare, dar suprafata utila este frumos compartimentata si bine gandita. Faptul ca este mai micuta poate fi un avantaj ! Nu ne "pierdem" prin incaperi si vom fi mereu mai aproape de persoanele dragi ! "



