Casa 4 camere de vanzare in Cluj-Napoca, Grigorescu ID 4446
Dotari imobil
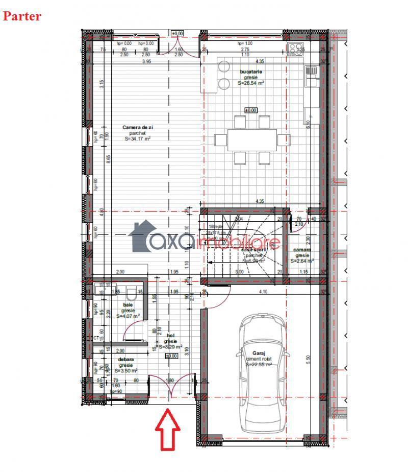
Detalii imobil
Al doilea nivel / Etaj: 3 dormitoare, 2 bai, 1 hol, 1 dressing, 3 terase. (Unul din dormitoare dispune de dressing si baie).
Descriere imobil
Propunem spre vanzare imobil de tip casa , ce dispune de arhitectura moderna si de compartimentare bine gandita, in Cluj-Napoca, in cartierul Grigorescu - zona Piata 14 Iulie (locatia este linistita, in apropiere de facilitati).
Imobilul are o suprafata utila generoasa de 203 mp; fiind compartimentata intr-un stil modern, foarte bine gandit, astfel incat sa ofere confort, dar in acelasi timp sa imbine utilul cu placutul.
Dispune de 4 camere (1 living generos si 3 dormitoare, de asemenea spatioase).
Dispune de terase, potrivite pentru relaxare; oferind o priveliste frumoasa asupra zonei.
Casa se vinde la stadiul de semifinisat; dispune de centrala termica, usa la intrare si geamuri termopan.
De asemenea, imobilul dispune de 300 mp de teren, garaj si parcare.
Opinia agentului
" Casa spatioasa, ce pune accent pe arhitectura moderna, confort si locatie. Imobil dispus pe doua niveluri, nou, situat in cartierul Grigorescu, recomandat pentru o familie. "



