Apartament 4 camere de vanzare in Cluj-Napoca, Gheorgheni ID 4356
Dotari imobil
Descriere imobil
Propunem spre vanzare apartament dispus pe doua niveluri, compartimentat modern, situat in Cluj-Napoca, in cartierul Gheorgheni, pe strada Romul Ladea, intr-o locatie nou-dezvoltata, aerisita, cu spatii verzi in jur.
Apartamentul este pozitionat pe ultimele doua niveluri intr-un bloc nou ( 2E+M / P+2E+M ).
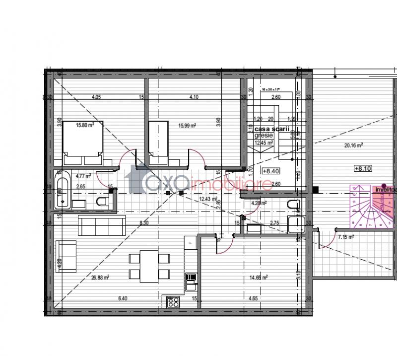
Suprafata totala este de 125 mp.
Primul nivel / Etajul 2 (84 mp) : hol, living cu bucatarie open space, 2 bai, 2 dormitoare.
Al doilea nivel / Mansarda (41 mp) : hol, 1 dormitor, 1 baie.
Se vinde la stadiul de semifinisat.
Dispune de centrala termica, geamuri termopan Veka cu 3 sticle, geamuri Velux si usa antiefractie.
Pretul include loc de parcare.
Optional: garaj si/sau boxa.
Opinia agentului
" Apartament semifinisat, dispus pe doua niveluri, potrivit clientilor mei care doresc sa locuiasca intr-o locatie linistita si aerisita din cartierul Gheorgheni. "



