Apartament 2 camere de vanzare in Cluj-Napoca, Manastur ID 3040
Dotari imobil
Descriere imobil
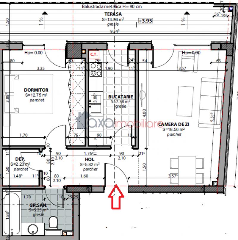
Propunem spre vanzare apartament cu 2 camere, ce dispune de o suprafata utila de 53 mp, decomandat, situat in cartierul Manastur, in apropiere de Kaufland si statia de autobuz.
Apartamentul este pozitionat la etaj intermediar intr-un imobil cu regim de inaltime S+P+6E, ce va fi finalizat in Aprilie-Mai 2016.
Compartimentarea este decomandata si bine gandita: 1 living, 1 bucatarie, 1 hol, 1 baie, 1 dormitor si 1 terasa.
Se vinde la stadiul de semifinisat cu sapa autonivelanta si peretii gletuiti.
Apartamentul are in dotare centrala termica, geamuri termopan cu tamplarie din PVC si usa metalica la intrare.
Opinia agentului
''Oferta recomandata celor care doresc sa locuiasca intr-un imobil nou si care doresc sa isi finiseze locuinta dupa bunul plac.''



