Apartament 2 camere de vanzare in Cluj-Napoca, Gheorgheni ID 2929
Pret:
60 087 EURO +TVA
Pret/mp:
1 150 EURO/m2
Nr. camere:
2
Etaj:
Intermediar/10
Bloc Nou:
da
Anul constructiei:
2015
Finalizat:
nu
Data finalizarii:
Decembrie 2015
Confort:
1
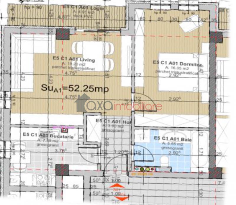
Suprafata utila:
52.25 m2
Balcoane:
1 LOGIE
Localitate:
Cluj-Napoca
Cartier:
Gheorgheni
Zona:
Iulius Mall
Adaugat in data:
16-10-2015
Actualizat in data:
09-10-2023
Vizite oferta:
12351
Dotari imobil
Bucatarie:
1
Bai:
1
Parcare:
nu
Beci:
nu
Decomandari:
Decomandat
Finisaje:
Semifinisat
Mobilat:
nu
Utilat:
nu
Constructie:
Caramida
Geamuri termopan
Usa antiefractie
Centrala termica
Contoare gaz
CF
Descriere imobil
De vanzare apartament cu 2 camere, cu suprafata utila de 52.25 mp, decomandat, semifinisat, pozitionat la etaj intermediar intr-un imobil nou cu regim de inaltime S+P+10E, ce dispune de lift. Apartamentul este situat in cartierul Gheorgheni, zona Iulius, intr-o locatie ce ofera diverse facilitati in imediata apropiere.
Compartimentarea este decomandata si gandita astfel: 1 living, 1 dormitor, 1 bucatarie, 1 baie, 1 hol si 1 logie.
Dispune de centrala termica, calorifere, usa metalica si geamuri termopan cu 3 sticle, cu tamplarie Rehau.
Se vinde la stadiul de semifinisat cu sapa autonivelanta si peretii gletuiti in doua straturi.
Contra sumei de 5500 euro se poate achizitiona si parcare subterana.
Folositi formularul de mai jos pentru a ne contacta
Persoana de contact: Secretariat
Telefon: 0742/130130
0264/333147
Fax: + 40 264 333 147
Email: office@axaimobiliare.com
Adresa: Cluj-Napoca, Str. Memorandumului, nr. 19



