Apartament 2 camere de vanzare in Cluj-Napoca, Borhanci ID 4522
Dotari imobil
Beton
Descriere imobil
Vindem apartament cu 2 camere, la stadiul de semifinisat, situat in Cluj-Napoca, in cartierul Borhanci, in zona strazii Romul Ladea, intr-o locatie linistita si aerisita.
Apartamentul este pozitionat la parterul unui bloc nou cu lift, ce dispune de regim de inaltime S+D+P+3E, cu termen de finalizare in Iunie 2018.
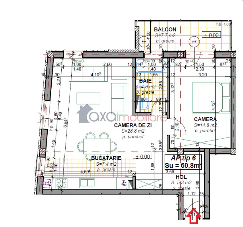
Imobilul dispune de compartimentare moderna: living cu bucatarie open space, hol, 1 dormitor, 1 baie si 1 balcon (7.7 mp).
Dotari: centrala termica, calorifere, geamuri termopan si usa antiefractie.
Se vinde la stadiul de semifinisat cu sapa autonivelanta si peretii gletuiti.
Pretul unui garaj este de 4.000 euro.
Opinia agentului
" Imobil nou si spatios, compartimentat modern, situat intr-o locatie linistita si aerisita din cartierul Borhanci "



