Apartament 1 camere de vanzare in Cluj-Napoca, Gheorgheni ID 4606
Dotari imobil
Beton
Descriere imobil
Apartament cu 1 camera, semifinisat, situat in Cluj-Napoca, in cartierul Gheorgheni, intr-o locatie nou-dezvoltata cu priveliste frumoasa asupra zonei.
Vecinatati: Iulius Mall, Parcul Sportiv Gheorgheni.
Apartamentul este pozitionat la etajul 1 / 2S+P+9E, intr-un bloc nou cu lift.
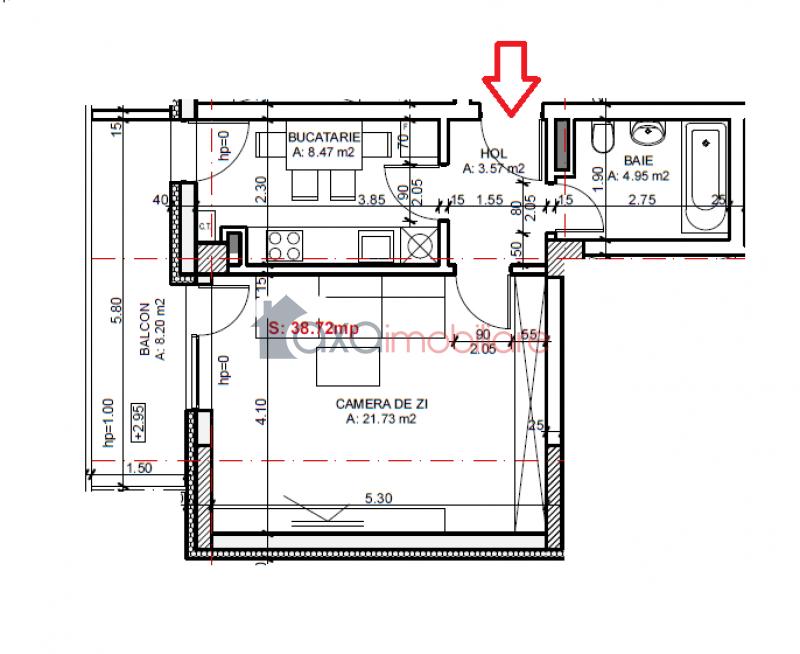
Suprafata utila este de 38.72 mp, compartimentata decomandat: 1 camera, 1 bucatarie, 1 hol, 1 baie + 1 balcon (8.20 mp).
Aceleasi suprafete si compartimentari se pot gasi si la etajele 2,3,4,5,6,7.
Se vinde la stadiul de semifinisat cu sapa autonivelanta, cu peretii gletuiti si tencuiti.
Dotari incluse in pret: centrala termica, calorifere, geamuri termopan, usa antiefractie.
Exista posibilitate de achizitionare garaj subteran (6.000 euro).
Opinia agentului
" Avantajele ofertei: compartimentare decomandata, etaj intermediar, locatie frumoasa, pretabil atat pentru locuit, cat si pentru investitie, imobil nou. "



